NSE-800

CADデータ
下記よりダウンロードください。
SAN・RACK NSE-800TYPE
特徴
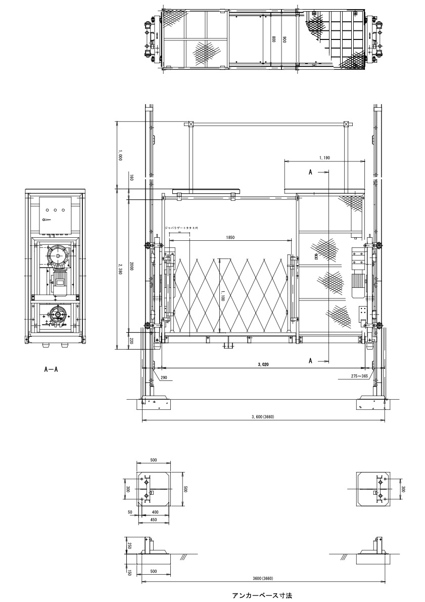
- 建枠組足場2スパン(3,600~3,660)内に設置可能な、他社にない合法のロングスパン工事用エレベーターです。
- ガイドレールの取付が、枠組足場の横桟に直接クランプで取付が可能で、コロバシパイプが不要です。
- 本体の荷台の高さが地上より250mmの位置まで降りるため、荷の積み卸し用架台が不要です。
名称
| 番号 | 名称 | 数量 |
|---|---|---|
| 1 | ベース | 2 |
| 2 | ガイドレール | N |
| 3 | ラック | N |
| 4 | 昇降フレーム | 2式 |
| 5 | ギヤードモーター | 2 |
| 6 | ガバナー | 2 |
| 7 | 制御盤 | 1 |
| 8 | 過荷重防止スイッチ | 2 |
| 9 | 荷台A | 1 |
| 10 | 荷台B | 1 |
| 11 | 荷台アルミ板 | 3 |
| 12 | 巾木レール | 2 |
| 13 | 側面覆いフレーム | 2 |
| 14 | 頭上覆い | 1 |
| 15 | レール組立足場台 | 1 |
| 16 | 操作側正面フレーム | 1 |
| 17 | 手摺側正面フレーム | 1 |
| 18 | 手摺止メパイプ | 4 |
| 19 | 手摺(ステージガード) | 2 |
| 20 | バァッファ | 4 |
| 21 | 頭上縦巾決メパイプ | 2 |
| 22 | 仕切遮断パイプ | 1 |
| 23 | 過昇防止ストッパー | 2 |
| 24 | 上下限リミット接触板 | 4 |
| 25 | 手摺用ロックリミットスイッチ | 2 |
| 26 | 過昇防止リミットスイッチ | 2 |
| 27 | 下限リミットスイッチ | 2 |
| 28 | 上限リミットスイッチ | 2 |
| 29 | 傾斜防止リミットスイッチ | 4 |
| 30 | ガバナーリミットスイッチ | 2 |
| 31 | 操作リモコンスイッチ | 1 |
| 32 | モーターカバー | 2 |
| 33 | ガバナーカバー | 2 |
| 34 | 電源コード | 揚程+α |
仕様
| 最大積載荷重 | 800kg |
| 最大揚程 | 60m |
| 昇降速度 | 10m/min 50/60Hz |
| 昇降電動機 | 2.2kW 2基 |
| 昇降方式 | ラック・ピニオン |
| 操作方法 | 運転席リモコン |
| 荷台寸法 | 3.02m×0.9m |
| 安全装置 | ガバナー式自動落下防止装置 過荷重防止装置 傾斜自動修正装置 傾斜時停止装置(2度以上) 上下限制限装置 下限時自動水平装置 組立解体時過昇防止装置 昇降時警報装置 電源逆相防止装置 緩衝装置 |
| 電源 | 200/200V 3相交流 |
