VCT-40

CADデータ
下記よりダウンロードください。
部品名と重量
ジブ長さ:22.926m
| 部品名 | 重量(Kg) | 備考 |
|---|---|---|
| ベース | 990 | 標準用 |
| 〃 | 2430 | 24m自立用(タワーステー付) |
| タワー | @1870 | 標準型 81.28φ×5.88M/P |
| 〃 | @1980 | 下部用 81.28φ×5.88M/P |
| タラップ | @20 | – |
| クライミングマス | 1805 | – |
| クライミング装置 | – | – |
| 旋回台 | 2274 | – |
| ウィンチビーム | 640 | – |
| 巻上ウィンチ | 650 | – |
| 起伏ウインチ | 370 | – |
| 配電盤 | 100 | – |
| Aフレーム | 960 | – |
| ブーム1 | 1585 | 下部 3.8m |
| ブーム2 | 1585 | 中間部 6.0m |
| ブーム3 | 1585 | 中間部 7.126m |
| ブーム4 | 1585 | 中間部 6.0m |
| ブーム5 | – | – |
| 起伏ブロック | 52 | – |
| フックブロック | 100 | – |
| 巻上ワイヤー | 110 | 4×F(a+30) orU4×SeS(39) 12φ×200M |
| 起伏ワイヤー | 68 | 6×Fi(29) IWRC B種 10φ×190M |
| ペンダントワイヤー | @38 | 2本 6×Fi(29) B種/14φ×31.45M仕上り |
| ストップワイヤー | 30 | 6×Fi(29) B種/18φ×13M仕上り |
| タワークランプ | @140 | かべ継ぎ材客先手配 |
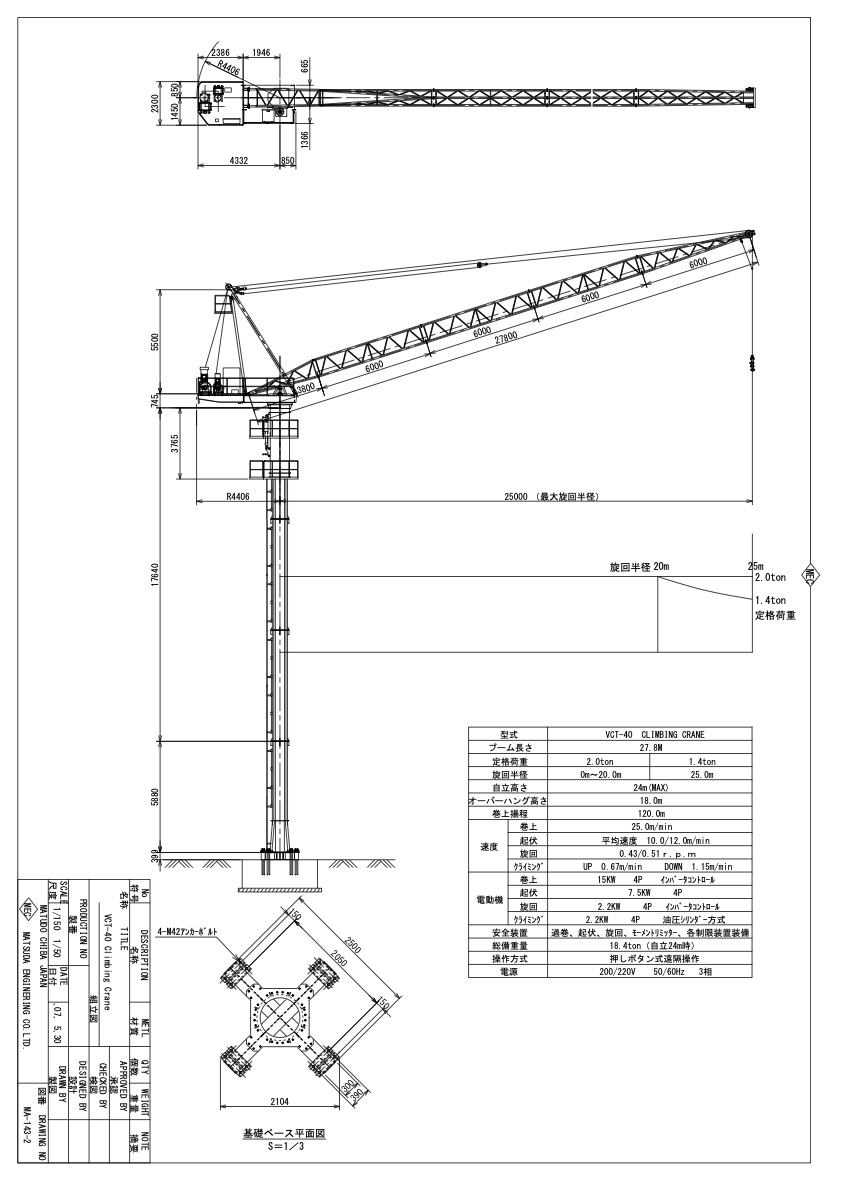
ジブ長さ:27.8m
| 部品名 | 重量(Kg) | 備考 |
|---|---|---|
| ベース | 990 | 標準用 |
| 〃 | 2430 | 24m自立用(タワーステー付) |
| タワー | @1870 | 標準型 81.28φ×5.88M/P |
| 〃 | @1980 | 下部用 81.28φ×5.88M/P |
| タラップ | @20 | – |
| クライミングマス | 1805 | – |
| クライミング装置 | 445 | – |
| 旋回台 | 1829 | – |
| ウィンチビーム | 640 | – |
| 巻上ウィンチ | 650 | – |
| 起伏ウインチ | 370 | – |
| 配電盤 | 100 | – |
| Aフレーム | 960 | – |
| ブーム1 | 1871 | 下部 3.8m |
| ブーム2 | 1871 | 中間部 6.0m |
| ブーム3 | 1871 | 中間部 7.126m |
| ブーム4 | 1871 | 中間部 4.874m |
| ブーム5 | 1871 | 上部 6.0m |
| 起伏ブロック | 52 | – |
| フックブロック | 100 | – |
| 巻上ワイヤー | 110 | 4×F(a+30) orU4×SeS(39) 12φ×200M |
| 起伏ワイヤー | 68 | 6×Fi(29) IWRC B種 10φ×190M |
| ペンダントワイヤー | @50 | 2本 6×Fi(29) B種/14φ×41.45M仕上り |
| ストップワイヤー | 30 | 6×Fi(29) B種/18φ×13M仕上り |
| タワークランプ | @140 | かべ継ぎ材客先手配 |
仕様
| 型式 | VCT-40 |
| 定格荷重t(22.926Mジブ) | 2.8t / 2.0t |
| 旋回半径m(22.926Mジブ) | 0〜15m / 20.0m |
| 定格荷重t(27.8Mジブ) | 2.0t / 1.66t / 1.4t |
| 旋回半径m(27.8Mジブ) | 0~20.0m / 22.5m / 25.0m |
| 巻上速度 | 21.0/25.0m/min 2.5/3.0m/min |
| 起伏速度 | 11.0/13.0m/min |
| 旋回速度 | 0.54/0.65r.p.m |
| クライミング速度 | UP 0.56/0.67m/min DOWN 0.95/1.15m/min |
| 巻上電動機 | 10/1.2kw 6/6P (15/1.9kw 6/4P) |
| 起伏電動機 | 8kw 4P |
| 旋回電動機 | 2.2kW 4P |
| クライミング電動機 | 2.2kW 4P |
| 揚程 | 75m |
| クライミング方式 | 油圧式セルフクライミング |
| 自立高さ | 18.864m(ステー使用時24.780m) |
| 操作方法 | 押ボタンリモートコントロール |
| 安全装置 | 過巻・起伏・旋回各制限装置 モーメントリミッター付 |
| 電源 | 200/220V・50/60Hz 3φ |
