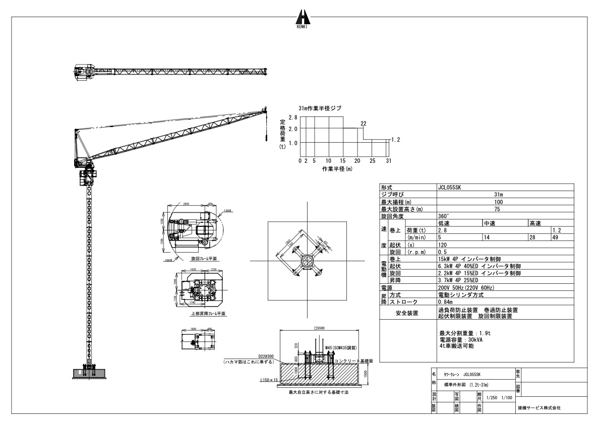
JCL055SK

CADデータ
下記よりダウンロードください。
仕様
| ジブ呼び | 17.8m / 24.4m / 31m |
| つり上げ荷重(t) | 2.8 |
| 最大揚程(m) | 110 / 105 / 100 |
| 最大設置高(m) | 90 / 85 / 75 |
| 旋回角度 | 360° |
| 巻上荷重(t) | 2.8 / 1.2 |
| 巻上速度(m/s) | 荷重2.8t/低速:0.08、中速:0.23、高速:0.46 荷重1.2t/高速:0.81 |
| 巻上速度(m/min) | 荷重2.8t/低速:5、中速:14、高速:28 荷重1.2t/高速:49 |
| 起伏速度(m/s) | 低速:0.13 中速:0.19 高速:0.25 |
| 起伏速度(s) | 低速:120 中速:118 高速:116 |
| 旋回速度(rad/s) | 0.052 |
| 旋回速度(r.p.m) | 0.5 |
| 電動機巻上 | 15kW 4P インバータ制御 |
| 電動機起伏 | 6.3kW 4P 40%ED インバータ制御 |
| 電動機旋回 | 2.2kw 4P 15%ED インバータ制御 |
| 電動機昇降 | 3.7kW 4P |
| 電源 | 200V 50Hz(220V 60Hz) |
| 安全装置 | 過負荷防止装置 巻過防止装置 起伏制限装置 旋回制限装置 |
| 最大分割重量 | 1.9t(マスト) |
