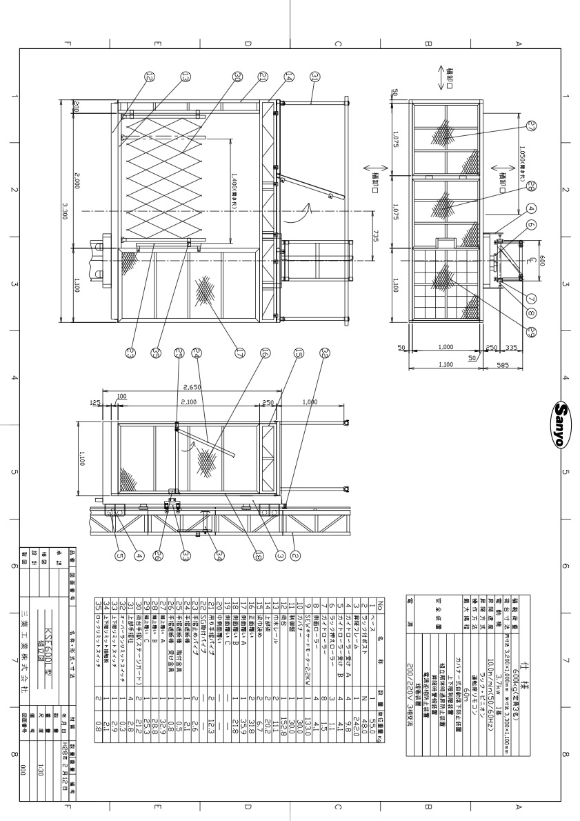
KSE-600

CADデータ
下記よりダウンロードください。
部品重量表
| 名称 | 数量 | 単位重量 kg |
|---|---|---|
| ベース | 1 | 55.0 |
| ラック付ポスト | N | 48.0 |
| 昇降フレーム | 1 | 242.0 |
| ガイドローラー受け A | 4 | 9.8 |
| ガイドローラー受け B | 4 | 4.1 |
| ラック押えローラー | 3 | 1.1 |
| ガイドローラー | 8 | 1.5 |
| 側面ローラー | 4 | 4.1 |
| SEWギヤードモーター 2.2kW | 1 | 133.0 |
| ガバナー | 1 | 30.0 |
| 制御盤 | 1 | 30.0 |
| 荷台 | 1 | 152.8 |
| 巾木レール | 2 | 11.1 |
| 上部梁 | 2 | 20.2 |
| 梁巾決め | 2 | 6.7 |
| 正面覆い | 2 | 31.8 |
| 側面覆い A | 1 | 35.9 |
| 側面覆い B | 1 | 21.8 |
| 側面覆い C | 1 | 35.9 |
| 中側面覆い | 1 | 20.9 |
| 吊り手摺パイプ | 2 | 12.3 |
| 手摺止めパイプ | 3 | 2.6 |
| 手摺遮断棒 | 1 | 2.1 |
| 手摺遮断棒 取付金具 | 1 | 0.5 |
| 手摺遮断棒 受け金具 | 1 | 0.8 |
| 頭上覆い A | 1 | 32.9 |
| 頭上覆い B | 1 | 28.8 |
| 頭上覆い C | 1 | 25.3 |
| 荷台手摺(ステージガード) | 1 | 21.2 |
| 上部手摺柱 | 4 | 2.8 |
| オーバーランリミットスイッチ | 1 | 0.3 |
| 上下限リミットスイッチ | 1 | 2.9 |
| 上下限リミット接触板 | 2 | 2.1 |
| ロックリミットスイッチ | 1 | 0.8 |
仕様
| 積載荷重 | 600kg(定員3名) |
| 荷台寸法 | 内寸法 3,200×1,000mm/外寸法 3,300×1,100mm |
| 電動機 | 3.7kW 1基 |
| 昇降速度 | 10.0m/min(60Hz) |
| 昇降方式 | ラック・ピニオン |
| 操作方法 | 運転席リモコン |
| 最大揚程 | 60m |
| 壁つなぎ間隔 | 6m以内 |
| 安全装置 | ガバナー式自動落下防止装置 上下限制限装置 オーバーラン防止装置 非常停止ボタン 昇降時警報装置 電源逆相防止装置 緩衝装置 |
| 電源 | 220V 3相交流 |
