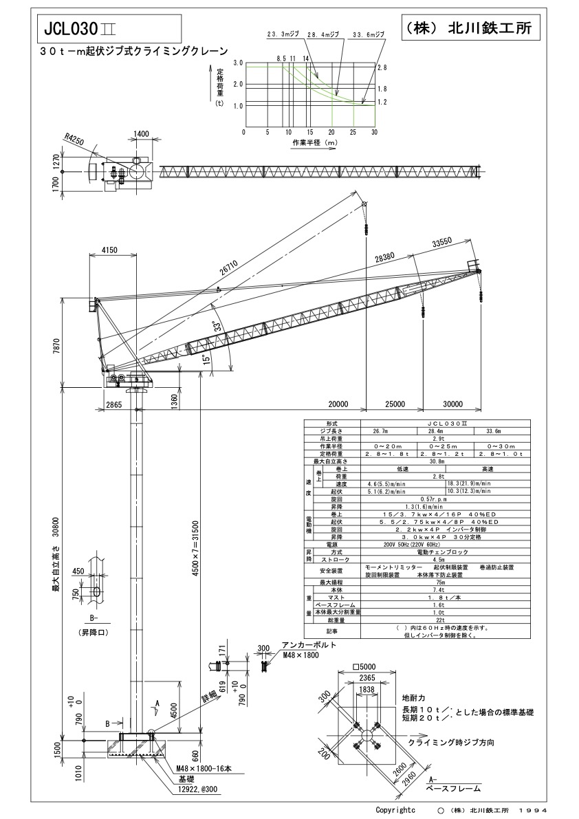
JCL030Ⅱ

CADデータ
下記よりダウンロードください。
仕様
| 型式 | JCL030Ⅱ |
| ジブ呼び | 20m / 25m / 30m |
| つり上げ荷重(t) | 2.92 |
| 定格荷重(t) | 2.8〜2.8〜1.9 / 2.8〜2.0〜1.2 / 2.8〜2.6〜1 |
| 作業半径(m) | 0〜14〜20 / 0〜11〜25 / 0〜8.5〜30 |
| 最大揚程(m) | 108 / 106 / 100 |
| 最大設置高さ(m) | 87 / 84 / 73 |
| 旋回角度 | 360° |
| 巻上荷重(t) | 0〜2.8 |
| 巻上速度(m/min) | 低速:4.6 / 5.5 高速:18.3 / 22.0 |
| 起伏速度(m/min) | 10.3 / 12.3 |
| 旋回速度(r.p.m) | 0.57 |
| 昇降速度(m/min) | 1.3(1.6) ( )内は60Hz時の速度を示す |
| 電動機巻上 | 15/3.7kw 4/16P 40%ED |
| 電動機起伏 | 5.5/2.75kw 4/8P 40%ED |
| 電動機旋回 | 2.2kw 4P 15%ED インバータ制御 |
| 電動機昇降 | 3kW 4P 30分定格 |
| 電源 | 200V 50Hz(220V 60Hz) |
| 昇降方式 | 電動チェンブロック方式 |
| 昇降ストローク | 4.5m |
| 安全装置 | モーメントリミッター 過巻防止装置 起伏制限装置 旋回制限装置 本体落下防止装置 |
| 最大自立高さ | 30.8m |
| 本体重量 | 8.6t |
| マスト重量 | 1.9t |
| ベースフレーム重量 | 1.7t |
| 最大分割重量 | 1.0t(マスト除く) |
| 総重量 | 24t |
| クレーン分類 | ※3 |
