VC-60A

CADデータ
下記よりダウンロードください。
部品名と重量
| 部品名 | 重量(Kg) | 備考 |
|---|---|---|
| ベース | 1,200 1,650 | 18m自立 30m自立 |
| タワー | 2,259 強力2,800 | 1.016φ×5.88m |
| アウトマスト | 2,390 | – |
| 旋回台 | 3,040 | – |
| ウィンチビーム | 2,239 | ウィンチ付 |
| Aフレーム | 1,670 | – |
| 巻上ウィンチ | 800 | – |
| 起伏ウインチ | 500 | – |
| ブーム1 | 2,917 | – |
| ブーム2 | 2,917 | – |
| ブーム3 | 2,917 | – |
| ブーム4 | 2,917 | – |
| ブーム5 | 2,917 | – |
| クライミング装置 | – | – |
| フックブロック | 144 | – |
| 巻上ワイヤー | 121 | 12φ×4×F(a+30) |
| 起伏ワイヤー | 101 | 10φ6×Fi(29) IWRC |
| 起伏ブロック | 88 | – |
| ペンダントワイヤー | 125 | 18φ6×Fi(29) IWRC |
| トラ金物 | 160 | – |
| ブーム手摺 | 55 | – |
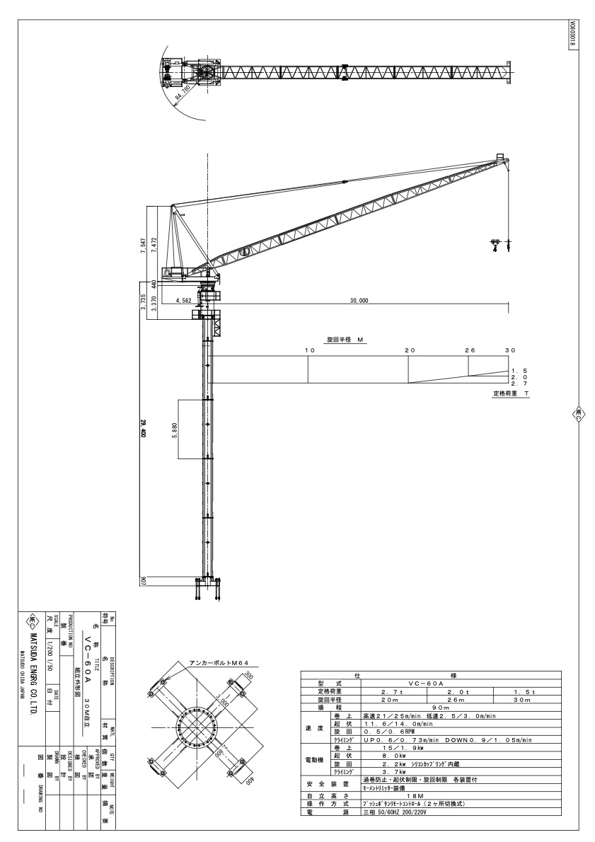
仕様
| 型式 | VC-60A |
| 定格荷重 | 2.7t/2.0t/1.5t |
| 旋回半径 | 0~20m/26m/30m |
| 揚程 | 90m |
| 巻上速度 | HIGH SPEED 21.0/25.0m/min LOW SPEED 2.5/3.0m/min |
| 起伏速度 | 10.0/12.0m/min |
| 旋回速度 | 0.25/0.30r.p.m |
| クライミング速度 | UP 0.50m/min DOWN 0.90m/min |
| 巻上(電動機) | HIGH SPEED 15.0kW LOW SPEED 1.5kW |
| 起伏(電動機) | 8.0kW |
| 旋回(電動機) | 2.2kW |
| クライミング(電動機) | 3.7kW |
| クライミング方式 | 油圧式セルフクライミング |
| 操作方法 | 押釦式遠隔操作 |
| 安全装置 | 起伏・巻上・旋回各制限装置付 モーメントリミッター付 |
| 電源 | 200/220V・50/60Hz 3P |
| 自立高さ | MAX18m MAX 30m |
| 備考 | 屋上設置可 巻上ウィンチは親子モーター使用 |
