KRD-950 荷台幅1000幅

CADデータ
下記よりダウンロードください。
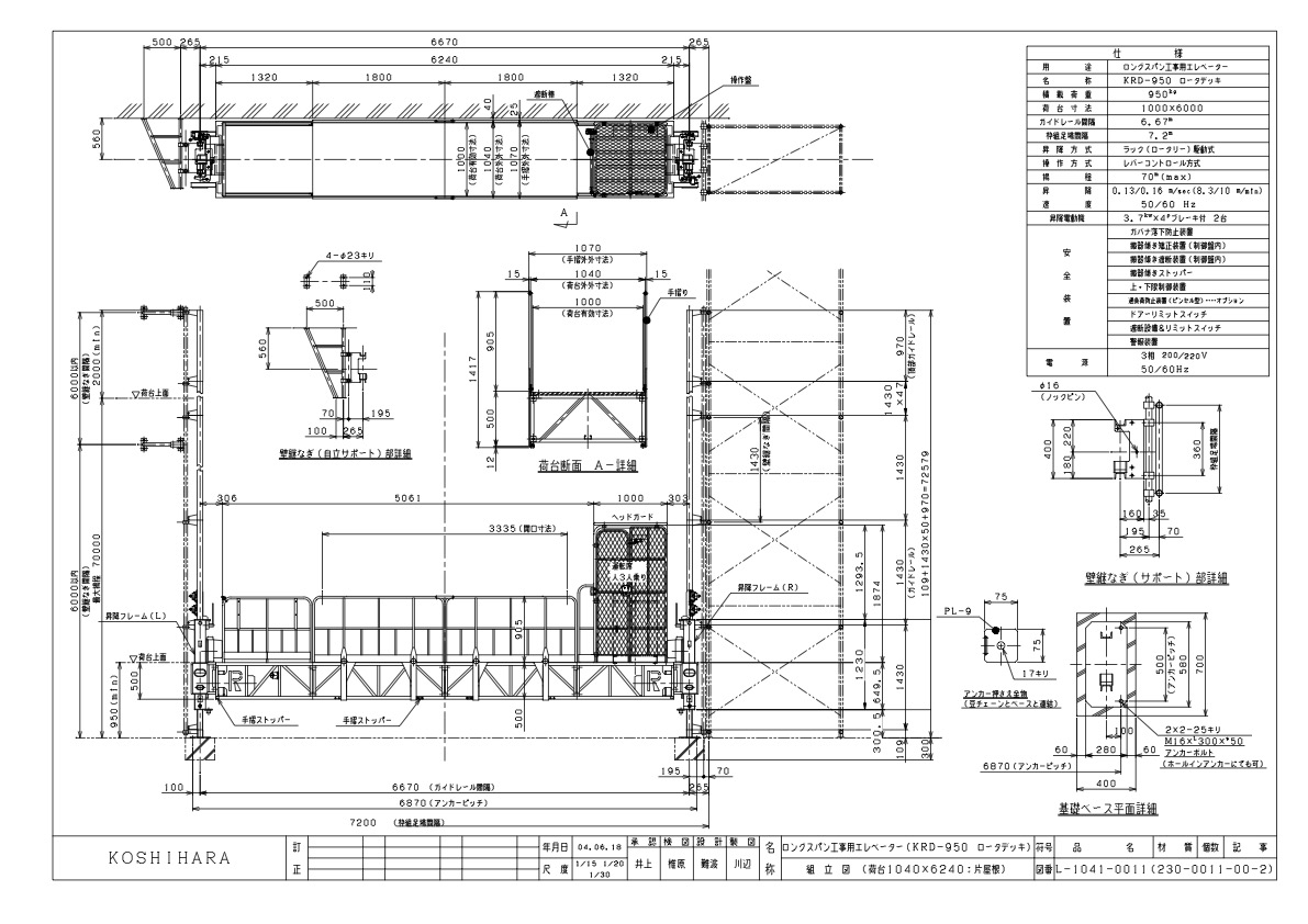
仕様
| 用途 | ロングスパン工事用エレベーター |
| 名称 | KRD-950 ローダー・デッキ |
| 積載荷重 | 950kg |
| 荷台寸法 | 1,000×6,000mm |
| ガイドレール間隔 | 6.67m |
| 枠組足場間隔 | 7.2m |
| 昇降方式 | ラック(ロータリー)駆動式 |
| 操作方式 | レバーコントロール方式 |
| 揚程 | 70m(MAX) |
| 昇降速度 | 8.3/10m/min(50/60Hz) |
| 昇降電動機 | 3.7kW×4P ブレーキ |
| 安全装置 | ガバナー式落下防止装置 搬器傾き矯正装置(制御盤内) 搬器傾き遮断装置(制御盤内) 搬器傾きストッパー 上・下限制御スイッチ ドアーリミッタスイッチ 遮断設置&リミッタスイッチ 警報装置 |
| 電源 | 3相 200/220V 50/60Hz |
| 備考 | オプション過負荷防止装置(ピンセル型) |
