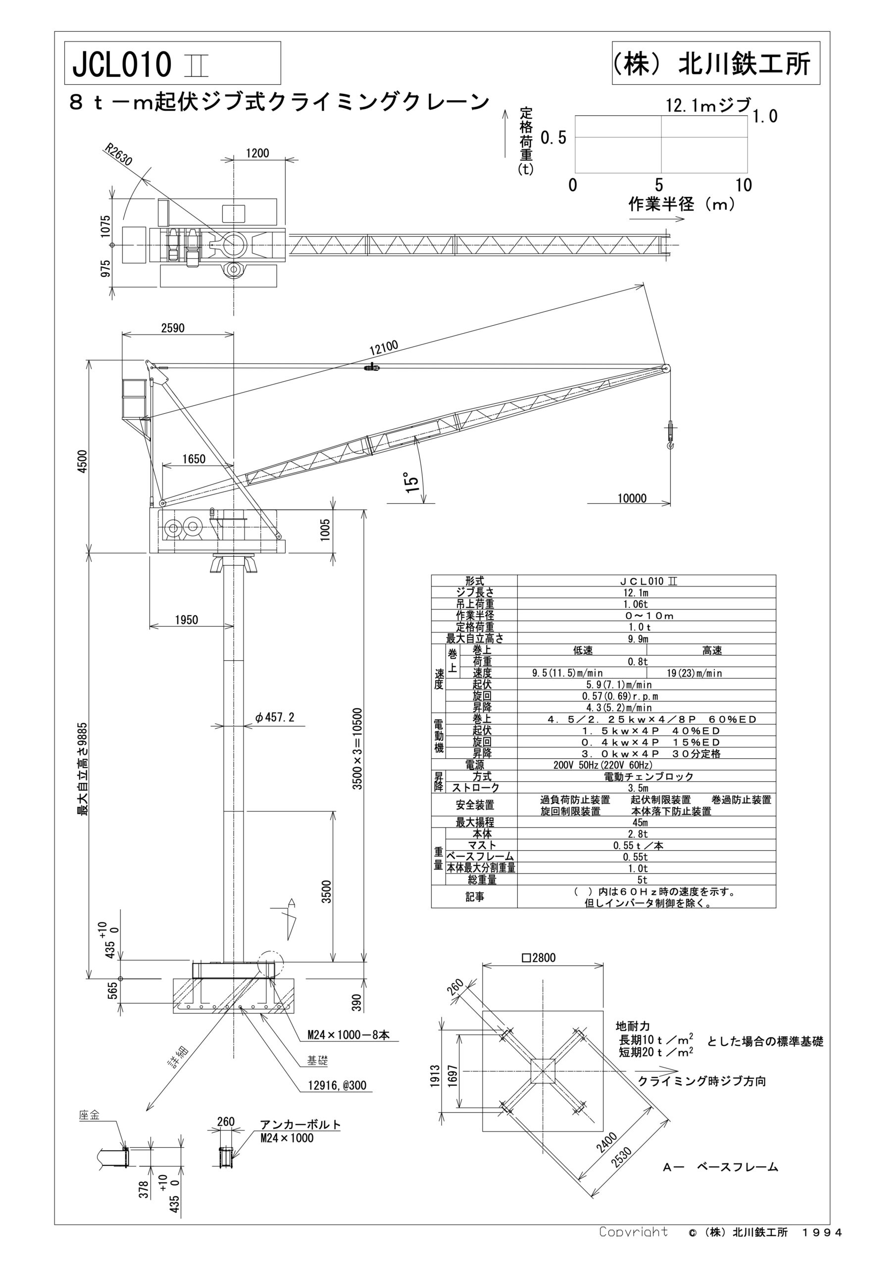
JCL010Ⅱ

CADデータ
下記よりダウンロードください。
仕様
| 型式 | JCL010Ⅱ |
| ジブ呼び | 10m |
| つり上げ荷重(t) | 0.86 |
| 定格荷重(t) | 0.8 |
| 作業半径(m) | 0~10 |
| 最大揚程(m) | 65 |
| 最大設置高さ(m) | 57 |
| 旋回角度 | 360° |
| 巻上荷重(t) | 0~0.8 |
| 巻上速度(m/min) | 低速:9.5(11.5) 高速:19(23) ( )内は60Hz時の速度を示す |
| 起伏速度(m/min) | 5.9(7.1) |
| 旋回速度(r.p.m) | 0.57(0.69) |
| 昇降速度(m/min) | 4.3(5.2) |
| 電動機巻上 | 4.5/2.2kW 4/BP 60%ED |
| 電動機起伏 | 1.5kW 4P 40%ED |
| 電動機旋回 | 0.4kW 4P 15%ED |
| 電動機昇降 | 3kW 4P 30分定格 |
| 電源 | 200V 50Hz(220V 60Hz) |
| 昇降方式 | 電動チェンブロック方式 |
| 昇降ストローク | 3.5m |
| 安全装置 | 過負荷防止装置 巻過防止装置 起伏制限装置 旋回制限装置 本体落下防止装置 |
| 最大自立高さ | 9.9m |
| 本体重量 | 2.7t |
| マスト重量 | 0.59t |
| ベースフレーム重量 | 0.5t |
| 最大分割重量 | 1.0t |
| 総重量 | 5.1t |
| クレーン分類 | ※3 |
