VCT-30
(PDF).jpg)
CADデータ
下記よりダウンロードください。
部品名と重量
| 部品名 | 重量(Kg) | 備考 |
|---|---|---|
| ベース | 746(18m自立) 1,190(24m自立) | – |
| タワー | 1300 | 711.2φ×5.88 |
| タラップ | 23 | 2.94M/P |
| クライミングマスト | 2300 | – |
| ウィンチビーム | 1,479 | ウィンチ及配電盤共 |
| Aフレーム | 966 | 起伏ブロック共 |
| 旋回フレーム | 1300 | – |
| ブーム1 | 1000 | – |
| ブーム2 | 1000 | – |
| ブーム3 | 1000 | – |
| ブーム4 | 1000 | – |
| 起伏ウインチ | 370 | – |
| 巻上ウィンチ | 500 | – |
| 配電盤 | 70 | – |
| 起伏ブロック | 137 | – |
| フックブロック | 110 | – |
| 起伏ワイヤー | 90 | 10φ6×Fi (29)IWRC |
| ペンダントワイヤー | 68 | 18φ(6×37) |
| 巻上ワイヤー | 90 | 12φ4×F(a+30) |
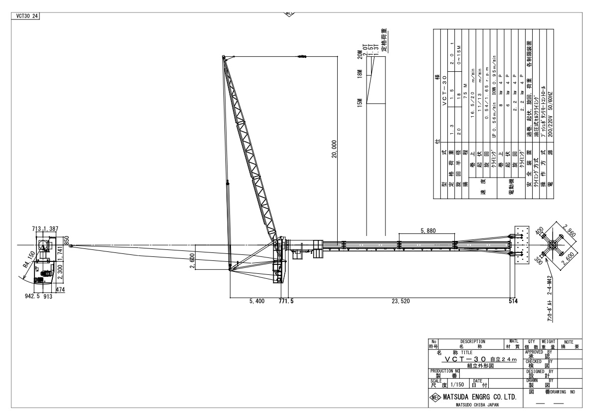
仕様
| 型式 | VCT-30 |
| 定格荷重 | 2.0t / 1.5t / 1.3t |
| 旋回半径 | 0~15m / 0~18m / 20m |
| 揚程 | 75m |
| 巻上速度 | 16.5/20m/min |
| 起伏速度 | 11.0/13.0m/min |
| 旋回速度 | 0.54/0.65rpm |
| クライミング速度 | UP 0.56m/min DOWN 0.95m/min |
| 巻上電動機 | 8.0kW |
| 起伏電動機 | 6.0kW |
| 旋回電動機 | 2.2kW |
| クライミング電動機 | 2.2kW |
| クライミング方式 | 油圧式セルフクライミング |
| 操作方法 | 押釦式遠隔操作 |
| 安全装置 | 起伏・巻上・旋回/各制限装置 モーメントリミッター付 |
| 電源 | 200/220V・50/60Hz |
| 自立高さ | MAX18m MAX24m(ステー付) |
