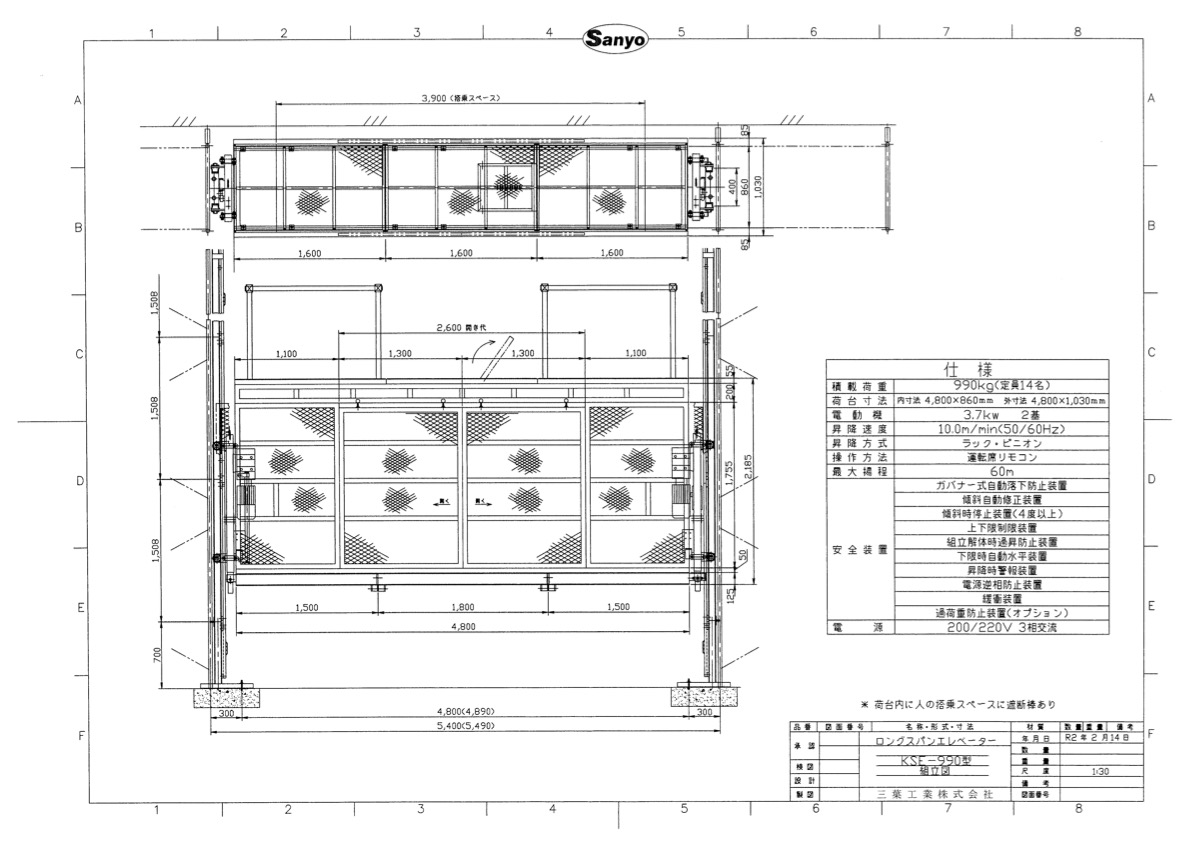
KSE-990

CADデータ
下記よりダウンロードください。
主要部品名称
| 図番 | 品名 |
|---|---|
| 1 | サポート |
| 2 | 頂部レール |
| 3 | ヘッドガード |
| 4 | 操作盤 |
| 5 | 手摺 |
| 6 | ガイドレール |
| 7 | 昇降フレーム |
| 8 | 受けローラー |
| 9 | 端部荷台 |
| 10 | 中部荷台 |
| 11 | カバー |
| 12 | 遮断設備&リミットスイッチ |
| 13 | 扉リミットスイッチ |
| 14 | 警報装置 |
仕様
| 用途 | ロングスパン工事用ラック式エレベーター |
| 名称 | KRD-800 ローダー・デッキ |
| 積載荷重 | 700kg |
| 荷台寸法 | 1.00m×6.24m |
| 昇降方法 | ラック(ロータリー)駆動式 |
| 操作方式 | レバーコントロール方式 |
| 揚程 | 50m(MAX) |
| 電源 | 3相 200/220V 50/60Hz |
| 昇降速度 | 8.3/10m/min 50/60Hz |
| 昇降電動機 | 2.2kW×4P ブレーキ付 2台 |
| 安全装置 | ガバナー式落下防止装置 搬器傾き矯正装置(制御盤内) 搬器傾き遮断装置(制御盤内) 搬器傾きストッパー 上・下限リミットスイッチ 扉リミットスイッチ 遮断設備&リミットスイッチ 警報装置 |
| オプション | アコーディオン型手摺 |
