HSL-900B

CADデータ
下記よりダウンロードください。
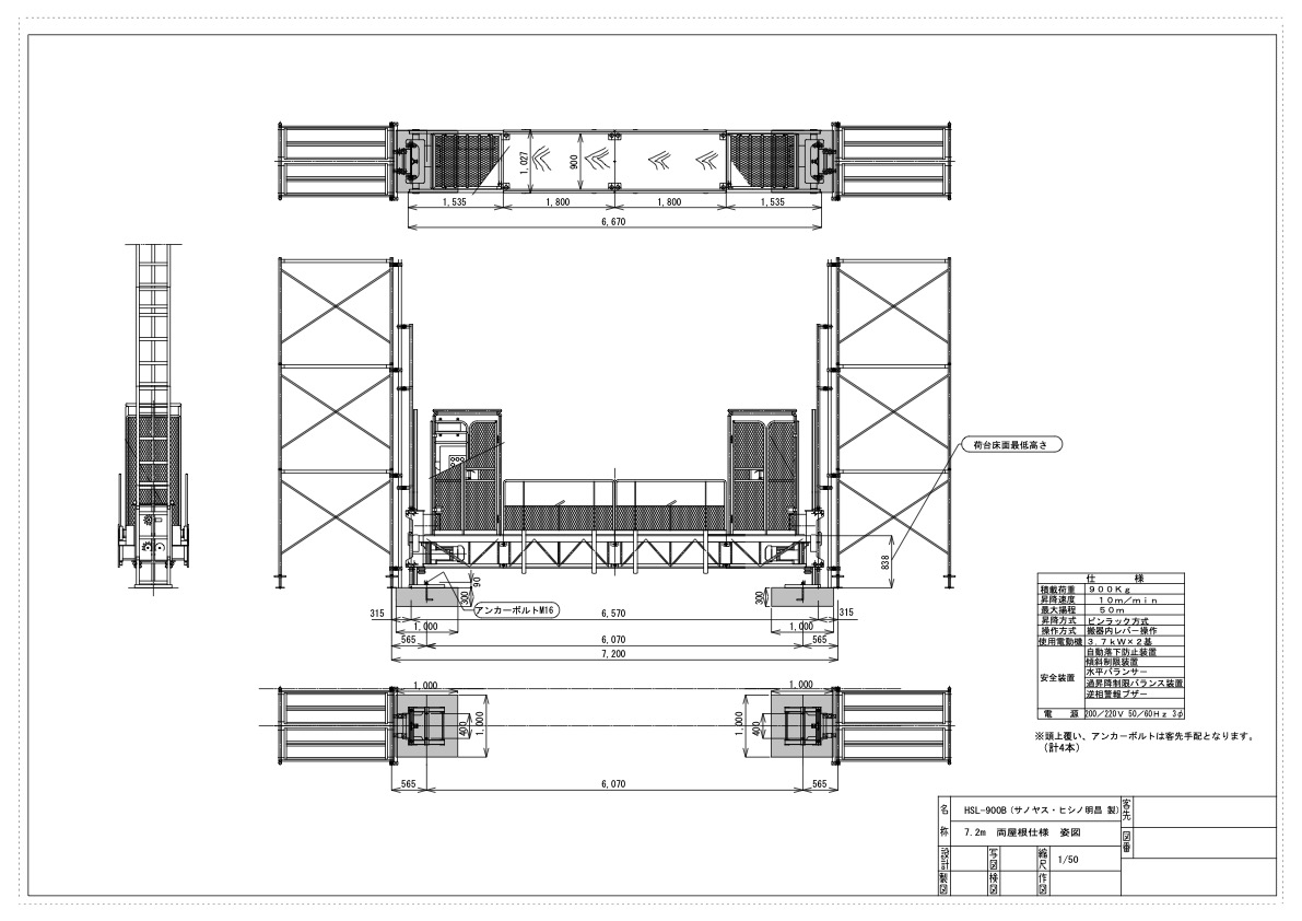
仕様
| 項目 | HSL-900B型 |
| 枠組間隔L | 5,400mm 7,200mm |
| 有効長L | 3,845mm 5,645mm |
| 積載荷重 | 900kg |
| 最大揚程 | 50m |
| 荷台有効巾 | 910mm |
| 昇降速度 | 8.3/10m/min 50/60Hz |
| 昇降方式 | ピンラック駆動方式 |
| 昇降用電動機 | 3.7kw 2基 |
| 操作方法 | 搬器取付ハンドル方式 |
| 電源 | 200/220V 50/60Hz 3相交流 |
| 安全装置 | 傾斜時停止装置 ガバナ式自動落下防止装置 水平バランサー 上昇時制限バランス装置 下降時制限バランス装置 昇降確認ブザー 非常時停止押ボタン ベース緩衝ゴム 逆相警報ブザー |
