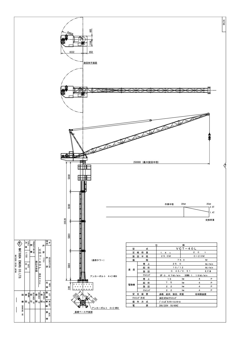
VCT-40L

CADデータ

下記よりダウンロードください。

部品名と重量

ジブ長さ:22.926m

部品名重量(Kg)備考
ベース990標準用
243024m自立用(タワーステー付)
タワー@1870標準型 81.28φ×5.88M/P
@1980下部用 81.28φ×5.88M/P
タラップ@20
クライミングマス1805
クライミング装置
旋回台2274
ウィンチビーム640
巻上ウィンチ650
起伏ウインチ370
配電盤100
Aフレーム960
ブーム11585下部 3.8m
ブーム21585中間部 6.0m
ブーム31585中間部 7.126m
ブーム41585中間部 6.0m
ブーム5
起伏ブロック52
フックブロック100
巻上ワイヤー1104×F(a+30) orU4×SeS(39)
12φ×200M
起伏ワイヤー686×Fi(29) IWRC B種
10φ×190M
ペンダントワイヤー@382本
6×Fi(29) B種/14φ×31.45M仕上り
ストップワイヤー306×Fi(29) B種/18φ×13M仕上り
タワークランプ@140かべ継ぎ材客先手配

ジブ長さ:27.8m

部品名重量(Kg)備考
ベース990標準用
243024m自立用(タワーステー付)
タワー@1870標準型 81.28φ×5.88M/P
@1980下部用 81.28φ×5.88M/P
タラップ@20
クライミングマス1805
クライミング装置445
旋回台1829
ウィンチビーム640
巻上ウィンチ650
起伏ウインチ370
配電盤100
Aフレーム960
ブーム11871下部 3.8m
ブーム21871中間部 6.0m
ブーム31871中間部 7.126m
ブーム41871中間部 4.874m
ブーム51871上部 6.0m
起伏ブロック52
フックブロック100
巻上ワイヤー1104×F(a+30) orU4×SeS(39)
12φ×200M
起伏ワイヤー686×Fi(29) IWRC B種
10φ×190M
ペンダントワイヤー@502本
6×Fi(29) B種/14φ×41.45M仕上り
ストップワイヤー306×Fi(29) B種/18φ×13M仕上り
タワークランプ@140かべ継ぎ材客先手配

仕様

型式VCT-40
定格荷重t(22.926Mジブ)2.8t / 2.0t
旋回半径m(22.926Mジブ)0〜15m / 20.0m
定格荷重t(27.8Mジブ)2.0t / 1.66t / 1.4t
旋回半径m(27.8Mジブ)0~20.0m / 22.5m / 25.0m
巻上速度21.0/25.0m/min  2.5/3.0m/min
起伏速度11.0/13.0m/min
旋回速度0.54/0.65r.p.m
クライミング速度UP 0.56/0.67m/min
DOWN 0.95/1.15m/min
巻上電動機10/1.2kw 6/6P (15/1.9kw 6/4P)
起伏電動機8kw  4P
旋回電動機2.2kW  4P
クライミング電動機2.2kW  4P
揚程75m
クライミング方式油圧式セルフクライミング
自立高さ18.864m(ステー使用時24.780m)
操作方法押ボタンリモートコントロール
安全装置過巻・起伏・旋回各制限装置
モーメントリミッター付
電源200/220V・50/60Hz 3φ