VCA-15

CADデータ
下記よりダウンロードください。
部品名と重量
| 部品名 | 重量(Kg) | 備考 |
|---|---|---|
| ベース | 12m自立 500 | 15m自立 ステー付1230 |
| タワー | 550 強化650 | 508φ×2.94m |
| タラップ | 23 | 2.94M/P |
| アウトマスト | 1600 | – |
| クライミング装置 | 1600 | – |
| 旋回台 | 1400 | ウインチ付 |
| 巻上ウインチ | 360 | – |
| 起伏ウインチ | 360 | – |
| Aフレーム | 411 | – |
| ブーム1 | 605 | – |
| ブーム2 | 605 | – |
| ブーム3 | 605 | – |
| ブーム4 | 605 | – |
| フックブロック | 18 | – |
| 巻上ワイヤー | 37 | 10φ4×F(a+30) |
| 起伏ワイヤー | 50 | 10φ×1281WRC |
| トラ金物 | 37 | – |
| 配電盤 | 50 | – |
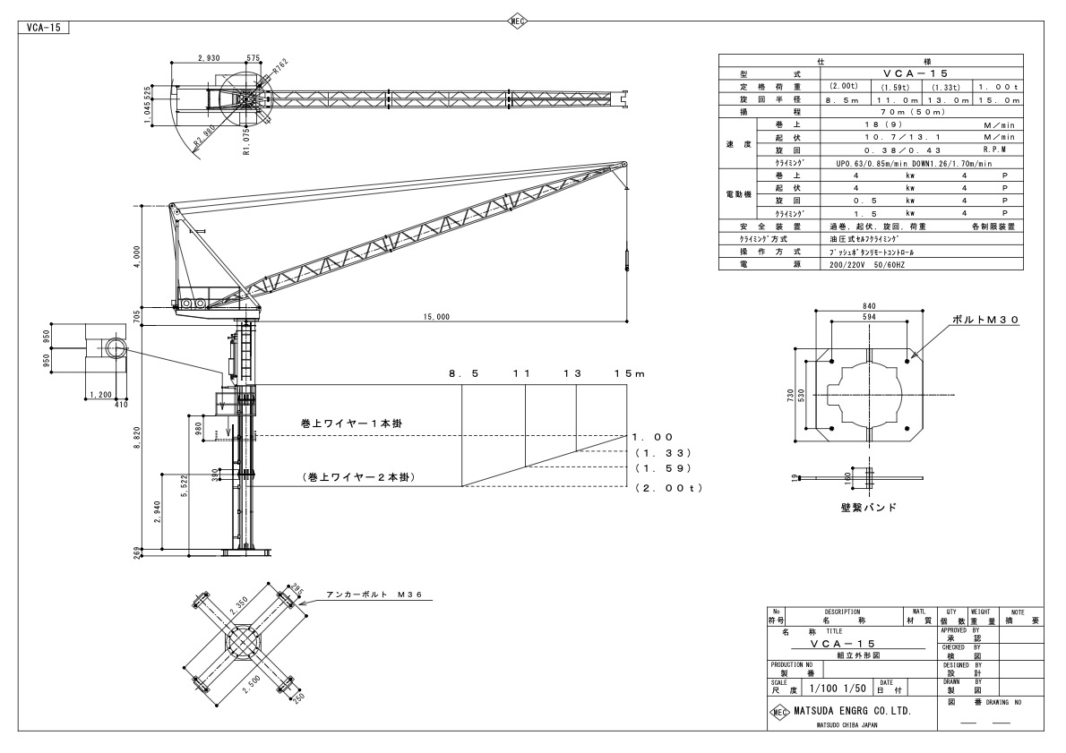
仕様
| 型式 | VCA-15 |
| 定格荷重 | 1.0t (2.0t) ( )内値はアタッチメント使用 |
| 旋回半径 | 0~15m (0~8m) |
| 揚程 | 75m (50m) |
| 巻上速度 | 18.0/22.0m/min(9.0/11.0m/min) |
| 起伏速度 | 12.6/15.1m/min |
| 旋回速度 | 0.30~0.36rpm |
| クライミング速度 | UP 0.63m/min DOWN 1.25m/min |
| 巻上電動機 | 4.0kW |
| 起伏電動機 | 4.0kW |
| 旋回電動機 | 0.75kW |
| クライミング電動機 | 1.5kW |
| クライミング方式 | 油圧式セルフクライミング |
| 操作方法 | 押釦式遠隔操作 |
| 安全装置 | 起伏・巻上・旋回・荷重 / 各制限装置付 |
| 電源 | 200/220V・50/60Hz 3P |
| 自立高さ | MAX12m MAX15.0m(ステー付) |
| 備考 | 屋上設置可 |
