建設用タワークレーン・ロングスパンエレベーター等のレンタル&メンテナンス&販売

HOME > ロングスパンエレベーター > ロングスパンエレベーターNO,7

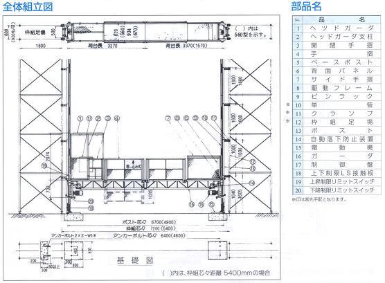
ロングスパンエレベーター NO,7

HSL-600



お問い合わせ